桂林主城区,作为历史悠久的城市中心,汇聚了商业、教育、交通、医疗及丰富的生态景观资源,是桂林楼市供应主力区域,也是本地居民购房的热门之选。
近年来随着土地资源的日益稀缺,加上市场环境的挑战,无论是外来大型开发商还是本土房企,在土地竞拍上的活跃度均显著下降。
值得关注的是,2023年9月,江苏泰州一家知名建筑企业成功竞得叠彩区站前路GJ202312号地块。经过近一年的精心筹备,该项目的规划终于出炉。
小桂获悉,项目规划有养老院、幼儿园等配套设施,总共只有768套住宅,一起来看看 !


日前,桂林市自然资源局发布了桂林市隆宇房地产开发有限公司委托泰兴一建建设集团有限公司编制的《隆泰福府》规划方案公示。
从规划公示来看,项目案名为隆泰福府,位于永彩路以东,金河路以北,为桂林市站前路储备用地CB8-1地块,规划设计条件中用地面积3.95公顷、容积率2.5、建筑密度27.4%、绿地率30%、建筑高度54米。
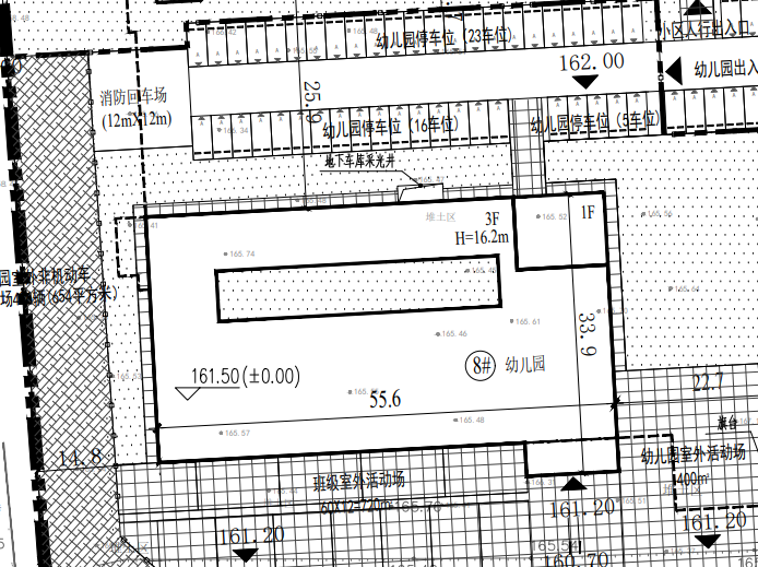
隆泰福府-规划总平面图截图
据此前土地出让公示,隆泰福府项目用地为城镇住宅用地兼容5%≤零售商业用地≤30%。
根据规划公示,整个隆泰福府项目规划为10栋建筑(含两个大门),住宅楼最高17层(不超过54米)。

其中,1#、2#、3#、5#、6#、7#均为住宅,每栋楼均设计为17层,总计768户。
从规划图来看,楼栋前后间距在43~45.5米之间,能获得良好的采光和通风条件。
隆泰福府-规划总平面图截图
8#为12班全日制幼儿园,每班30人,共360人。
幼儿园占地面积1493.93平方米,总建筑面积4351.65平方米,总层高为3层。
隆泰福府-规划总平面图截图
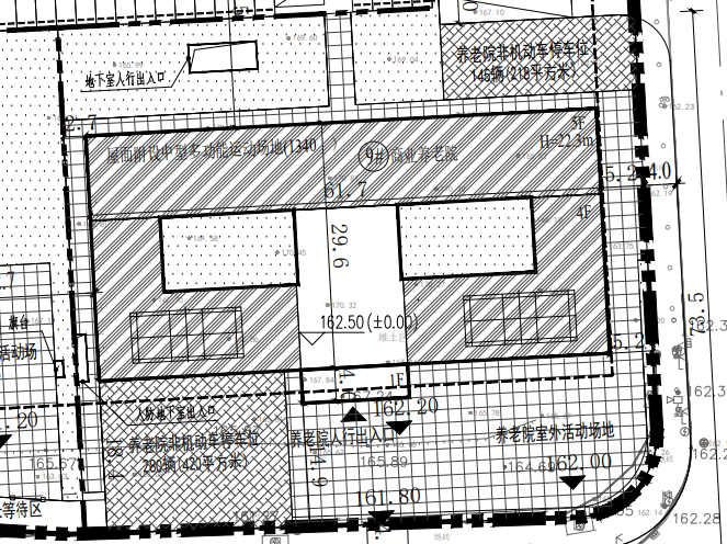
9#为商业养老院,占地面积1622.57平方米,总建筑面积7088.35平方米,总层高为5层,规划有92个床位。
隆泰福府-规划总平面图截图
隆泰福府项目用地为GJ202312号地块,按规划编号为CB8-1,地块位于彰泰·橘子郡北面。
周边有桂林市中医医院城北院区、城北小学、中山中学城北校区、大摩乾景广场、恒大广场、叠彩万达广场、桂林高铁北站等医疗、教育和商业配套,距离漓江也不远,区位优势明显。


周围已有彰泰·橘子郡、顺祥府、联发·欣悦、联发·乾景、桂林恒大江湾等小区,居住氛围浓厚。

从地段来说,具有一定优势,但这宗地却“命途多舛”。
地块最早于2021年3月,连同片区另外三宗商住用地打包出让,起始价为31000万元,起始楼面价约3137元/平方米。
随后2021年11月,地块降价至28035万元再度挂牌,彼时楼市颓势已现,依旧无人问津。
2023年8月,地块休整后第三次上架,起始价从最初的3.1亿元直降至1.84亿元,足足打了六折。
2023年9月6日,江苏新隆建设工程有限公司踩在最后时间点出手,作为唯一竞买人,以底价18376.8万元将
GJ202312号地块收入囊中, 成交楼面价约1860元/平方米。
资料显示,江苏新隆建设工程有限公司来自“建筑之乡”江苏省泰州市,是一家建筑业企业,曾入选“2022年度泰州市建筑业企业综合实力三十强”。
该公司其实早已进入桂林市场,参与了桂林市重大项目——桂林古宋城历史文化街区项目一期的建设。
桂林古宋城历史文化街区项目一期鸟瞰效果图

说在最后
叠彩区近年来一直是桂林楼市的主要供应区域,即便在今年楼市整体新盘上市量显著减少的背景下,该区域依然有多个全新楼盘推出。
例如,交投·和顺江畔,该项目是广西交投进军桂林老城核心的首个项目,以宋式美学为设计理念,独具特色。同时,虞山片区的9#地块(漓江阳光)和7#地块(圣庭苑)也已经亮相市场,这两个项目均紧邻漓江,地理位置极为优越且体量不大,尤为稀缺。
加上隆泰福府的补仓,对于有意购房的市民来说,这无疑提供了多样化的选择。
对于叠彩区的楼市格局,你有什么看法,欢迎留言交流。
