桂林首个以“企业家”为圆心打造的纯商务智慧总部基地,集“产品展示+生产研发+独立办公+商务接待+休闲娱乐”为一体
独立产权/花园办公/商务圈层/总部资产/燃气到户
租售热线: 0773-3562888

一、【项目简介】
项目名称:桂林云创谷
开发商:桂林光达投资有限公司
投资商:广东光大企业集团有限公司(东莞百强企业)
物业服务:东莞市光大物业(星级物业资质)
项目地址:桂林.福利北路2号(桂林北高速路口往南200米)
二、【核心指标】
项目规划:项目总体规划约183亩,总投资20亿,总建筑面积约50万m²,二期企业独栋总建筑面积约4万m²
业态规划:“一期写字楼+主题商业街+二期企业独栋总部+三期高标准厂房(规划中)+人才公寓(规划中)+滨水美宅”等多元业态为智慧产城综合体
容积率:1.38
产权性质:50年可分割独立产权
总户数:94套,一期仅推售38套
户型面积:建筑面积约352-643m²,百变户型可多样拼合,最大面积可达约1849m²
车位情况:机动停车位规划319个,非机动停车位规划824个(满足企业员工、商务接待需求)
三、【产品信息】
建筑类型:企业独栋、双拼、多拼产品
交付标准:毛坯
整体定位:打造桂林首个纯商务总部基地
产业聚焦:集医疗生物、工程建造、新一代电子信息、互联网大数据产业、现代服务(直播基地)等业态为一体的商务聚集基地
四、【区位配套】
黄金交通区位 企业的超享配套
项目位于高铁经济产业园区重要赛道,贵广高铁与衡柳快铁交汇区域,3小时通达南宁、云南、贵州、湖南、广东等多区域,紧邻桂林北高速收费站,是桂林北部县城兴安全州灌阳和湖南方向进入桂林城区的第一站。经东、西二环城市快速路,15-30分钟可到达市中心、临桂新区、叠彩万达等重要几大商圈,交通便利,助力事业畅通发达。

五、【项目价值点】
4层变6层 高达150%实得面积
7.5-10m大开间 极致拓展空间

约2万方园林景观打造 低密花园式独栋办公
四大休闲娱乐运动组团 工作无忧 更有生活

960m道光河环绕产业园区
玉带环腰 藏风纳气 让生意风生水起

个性化产品定制 独立冠名权 彰显企业实力
“产品展示+生产研发+独立办公+商务接待+休闲娱乐”为一体 应用场景多元化

多样醇熟配套融合 打造高阶商务圈层
“一期写字楼+主题商业+二期企业独栋总部+酒店配套(规划中)+星级花园+三期高标准厂房+滨水美宅”,满足企业全方位需求

300+机动车位 800+非机动车位
无忧停车 让员工上班、商务接待更从容

(注:实际车位以最终交付为准)
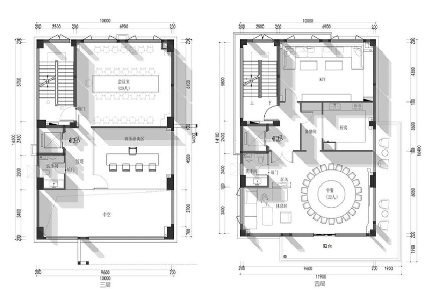
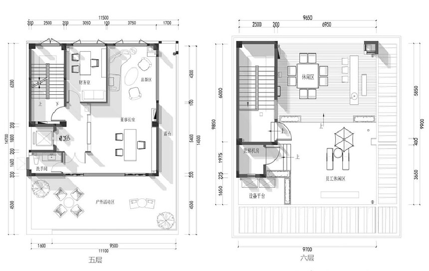
六、【户型介绍】
企业独栋-临河而建,270°IMAX观景视野,超阔开间布局
建筑面积约:643m²
可拓展面积约:352-372m²
层高:2F7.8m,其他楼层3.6m
平面尺寸:14.5m*10.0m



(以上为户型应用场景规划示意图,客户可根据需求自行规划场景,本产品为毛坯交付)
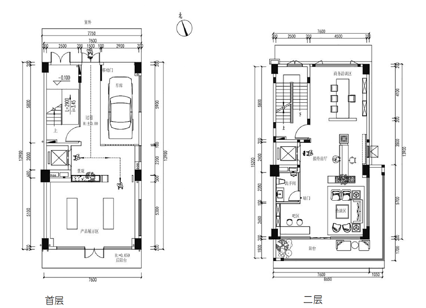
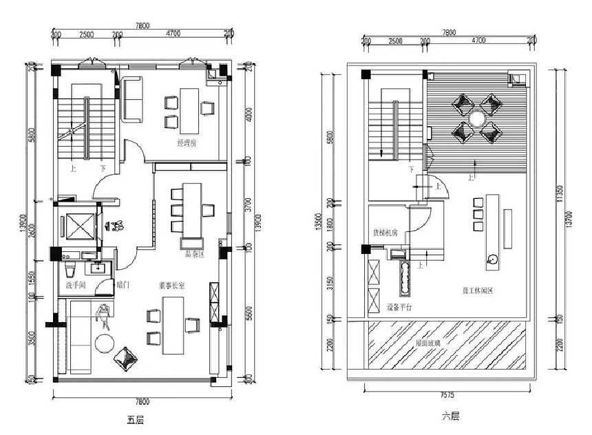
双拼/多拼户型-高得房率,户型灵活拼接,采光通风绝佳
建筑面积约:352-488m²
可拓展面积约:154-243m²
层高:2F7.8m,其他楼层3.6m
平面尺寸:13.9m*7.5m



(以上为户型应用场景规划示意图,客户可根据需求自行规划场景,本产品为毛坯交付)
七、样板间装修效果图(仅供参考)
一层:专属停车休闲区


二层:公共办公区,商务接待+多功能会议室,



三层:休闲会所


四层:高管办公区


八、园林效果图展示





