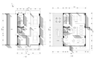
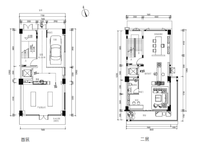
643m²企业独栋
0室0厅0卫 建筑面积约643.00m²
-
楼盘均价:5300元/㎡
-
参考总价:341万左右
-
首付:68.2万左右
-
更新时间:2025-03-27
