售完
更新时间:2015-11-20 有355786人感兴趣
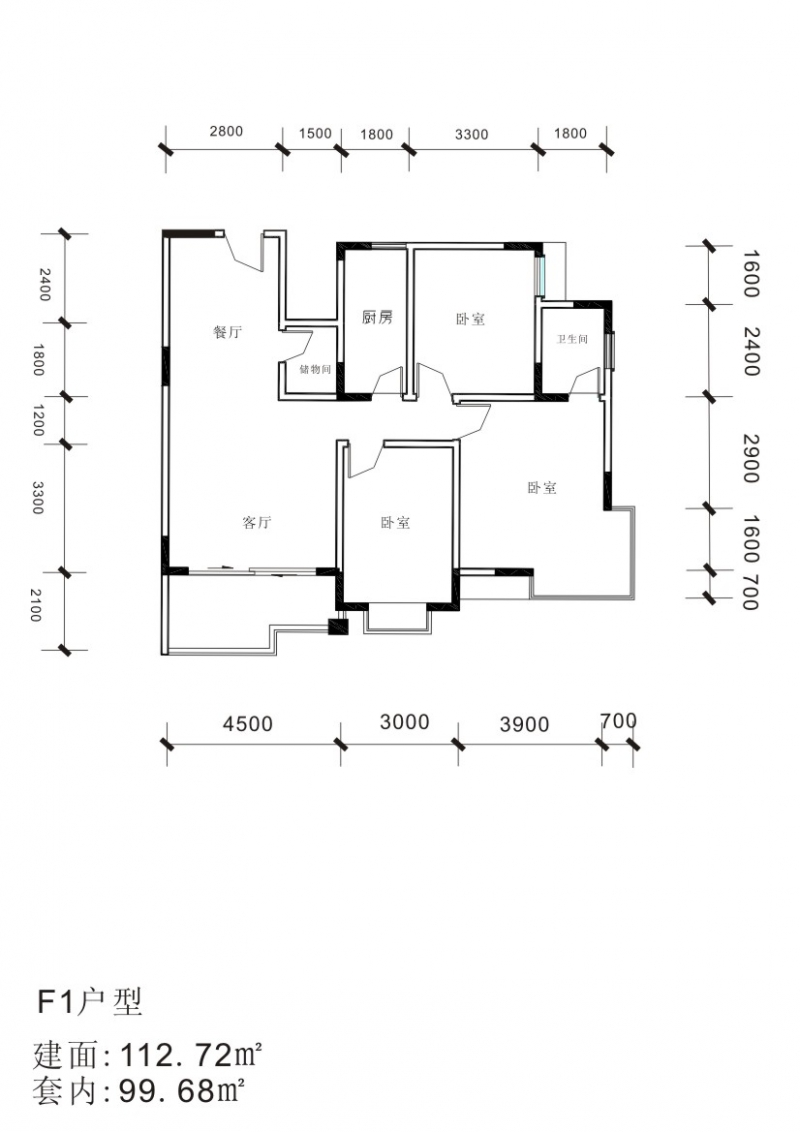
了解泗洲湾花园?漓江公馆F1户型三房两厅一卫112.72㎡户型的详细信息
服务热线
0773-2889282
(周一至周五,08:30-18:00)
桂房网
微信公众号:桂房网订阅号
Copyright © 2007-2024 桂房网 COM All rights reserved.
桂B2-20110016-1
{{item.nickname}} {{item.alias_name}} {{item.chat.time}}
{{item.chat | formatChat}}
{{item.content}}
{{item.time}}
电话 {{call_info.time_down}}s 后过期
{{call_info.time_down}}s
电话已过期 重新获取